Hopp til hovedinnholdet
Marienlyst skole kveld
Marienlyst skole dagslys
Marienlyst skole dagslys
Marienlyst skole passivhus eksteriør
Tilrettelegging for sykling
Marienlyst skole terrengtilpasning
Marienlyst utsikt park
Marienslyst skole amfi
Passivhus dagslys styring
Passivhus skole Drammen
Passivhus skole interiør
Passivhus dagslys styring
Marienslyst skole amfi
386069
Marienslyst skole amfi
Marienlyst skole kveld
Marienlyst utsikt park
Marienlyst skole dagslys
Passivhus skole interiør
Marienlyst skole passivhus eksteriør
Marienlyst skole uteareal
386068
Tilrettelegging for sykling

Marienlyst skole

2019.06.04 15:53

Marienlyst skole i Drammen ble landets første passivhusskole og erfaringene har blitt omfattende dokumentert i forskning.

Utbygger

Drammen Eiendom KF

Kommune

Drammen

Arkitekt

div.A arkitekter

Landskapsarkitekt

Bjørbekk & Lindheim

Kostnader og støtte

23 MNOK. Prosjektstøtte Enova: 4,8 MNOK.

Status

Ferdigstilt (2010)

Prosjektbeskrivelse

Marienlyst skole ligger sentralt i Drammen i direkte tilknytning til Marienlyst Idrettspark med flere store idrettsanlegg, idrettshall og Drammensbadet. Skolen knytter seg til et felles lavtemperatur nærvarmenett som gjør det mulig å utveksle varme og kjøling mellom kommunens eiendommer på Strømsø.

Drammen kommune ønsket en kompakt byskole. Kompakthet og geometri ble også i stor grad diktert ut i fra tomten og reguleringen. Bygget har en enkel, rektangulær form der alle skolens funksjoner er samlet i en bygningskropp på tre etasjer. Skolen har en kapasitet på cirka 500 elever med et areal på totalt 6500 kvadratmeter. Det blir dermed cirka 12 kvadratmeter per elev. Etter at bygget sto ferdig i 2010 har elevtallet økt, og i 2016 var det cirka 560 elever og 60 ansatte.

Første etasje er delvis nedgravd med et stort fellesrom med plass til at hele skolen kan samles. Et naturlig fall i terrenget utnyttes til å danne et amfi inne i fellesrommet. Ut over dette finnes også garderober, spesialrom og bibliotek i første etasje. I andre etasje er det fellesareal med kafé, lærerarbeidsplasser, administrasjon og spesialrom. I tredje etasje er det elevarealer og grupperom.

Prosess

Div.A arkitekter ble engasjert for prosjektering av Marienlyst skole etter førstepremie i en plan- og prosjektkonkurranse med fem deltakere i 2008. I konkurransen var det ikke krav til at skolen skulle oppfylle passivhuskrav.

Byggherren hadde i utgangspunktet høye energiambisjoner for prosjektet og en målsetting om at energiforbruk skulle være under 110 kW/m² år. I løpet av prosjektet ble SINTEF kontaktet for å se på muligheten for at skolen kunne tilfredsstille passivhusnivå, som blant annet betyr at oppvarmingsbehovet ikke skal overskride 15 kWh/m² år.

Beslutningen om passivhusnivå ble først tatt etter at grunnarbeidene hadde startet. Den kompakte bygningskroppen har vist seg å være svært godt egnet for å kunne ivareta passivhuskrav. Bygget er utført som totalentreprise med passivhuskrav som en etterbestilling til entreprenøren.

Økonomi og finansiering

Brutto investeringsramme var MNOK 224 (inkl. mva) inklusiv utomhusanlegg. Bygget var ikke opprinnelig tegnet som passivhus, og etterbestillingen kom på MNOK 9 (inkl. mva), eller ca. 5 prosent av kostnadene for bygget. Kostnadene ble dekket gjennom Enova-støtte.

Merkostnadene var hovedsakelig knyttet til oppgradering av vinduer og økte isolasjonsmengder. I tillegg kom kostnader til måleutstyr for overvåkning av formålsdelt energibruk. Instrumenteringen kostet omkring 500.000 NOK.  Det var ingen kostander forbundet med oppgradering av teknisk anlegg da det viste seg at et standard anlegg var tilstrekkelig.

Erfaringer

Som landets første passivhusskole var det knyttet stor interesse blant annet til opplevd inneklima. Undersøkelser viser at skolen kommer godt ut på dette området. Det har vært noen problemer med temperaturregulering, blant annet i forbindelse med at bruksfrekvensen av bygget på kveldstid ble vesentlig større enn forutsatt. Det tok også tid å finjustere trykkforskjellene internt i bygget for eksempel for å unngå at dører ble tunge å åpne. 

Byggherren er ikke helt fornøyd med dagslysforholdene i bygget. Planene i bygget er dype og de opplever at overlysene har ikke gitt den effekten de ønsket.

Miljøtiltak

Bymiljø og arkitektur

Marienlyst skole ligger på en skrånende bytomt i tilknytning til Marienlyst idrettspark. En aktivitetsgate binder sammen alle deler av idrettsparken og ender ved inngangen til skolen mot nordøst. Tomtens nivåforskjell er utnyttet ved å anlegge et utendørs amfi som leder deg inn til byggets hovedatkomst. Amfiet fortsetter inn i bygget og blir en del av skolens forsamlingslokale. Bygget åpner seg mot parken og gaten.

Utomhusarealene er begrenset i størrelse på grunn av den sentrale beliggenheten, men eksisterende park mot syd er en naturlig del av utearealet med terrasse og treamfi mot parken.

Klimagassutslipp

Prosjekt Marienlyst skole ble prosjektert etter FutureBuilt-kriteriet om minst 50 prosent reduksjon av klimagassutslipp sammenlignet med dagens standard. Det er utarbeidet et klimagassregnskap som dekker områdene transport i drift, stasjonær energi og materialbruk.

Det er utarbeidet klimagassberegninger for Marienlyst skole som prosjektert og etter 3 års drift. Fasen ”som bygget” er ikke utført, da beregningene kom relativt sent i gang. Som en av de første prosjektene i FutureBuilt startet referansebygg-beregningen med versjon 2 av verktøyet klimagassregnskap.no. Versjon 3 er blitt brukt for prosjektert bygg og versjon 4 for bygget i drift. Dette medfører enkelte problemer med hensyn til sammenligning av resultatene i de tre regnskapene.

Beregningen viser at klimagassutslipp knyttet til transport og energibruk er redusert, mens utslipp fra materialbruk har økt. Skolen var et av de første prosjektene i FutureBuilt. En prosess for å redusere klimagassutslipp fra materialbruk ble ikke vektlagt like mye, samtidig som passivhusnivået utløste økte materialmengder.

For samlet klimagassutslipp betyr det at utslippene har økt med 7,2 prosent ”som prosjektert” i forhold til referansebygget, men med gode tall for byggets energiforbruk i byggets driftsfase har dette snudd og man har oppnådd en reduksjon på 3,5 prosent når man ser på beregningene” i drift”.

For energi viser beregningen at man oppnår en reduksjon av klimagassutslipp på 43 prosent ved å sammenlikne prosjektert bygg med et referansebygg. Referansebygget har et energibehov på 135 kWh/m² år. Det prosjekterte bygget som passivhus har et energibehov på 70,4 kWh/m² år. Når man ser på driftsresultatene viser det seg at man for energiforbruk ”i drift” har oppnådd en reduksjon på 61,2 prosent.  Det gode resultatet  er en følge av at bygget er satt opp som passivhus og at et godt driftsteam har sørget for å drifte bygget energieffektivt.

Med mindre fokus på materialvalg ble det en betydelig økning av klimagassutslipp på 72,3 prosent fra referansebygget til prosjektert bygg. Økningen skyldes dels at det ikke ble gjort spesielle vurderinger med tanke på miljø og klima, noe som synes på materialmengder og materialtyper. Videre at det prosjekterte bygget har høyere materialmengder bl.a. for isolasjon fordi det er oppført som passivhus. Forskjeller i forutsetninger mellom modulene for ”referansebygg” og ”prosjektert bygg” i www.klimagassregnskap.no gjør at det er vanskelig å sammenligne konstruksjonene direkte.

Det er liten reduksjon av klimagassutslipp fra transport. For prosjektert bygg er reduksjonen på 2 prosent, for bygget i drift på 9,6 prosent. Reisemiddelfordeling for transport er basert på RVU (reisevaneundersøkelse) for Drammen. For arbeids- og skolereiser er det benyttet et vektet snitt. Skolen er sentralt plassert i Drammen, hvor elever kan gå og kjøre kollektivt. Dette kommer til syne på klimagassutslippet. Transport i forbindelse med kveldsbruk er ikke  målt.

Areal og transport

Parkeringsnormen for Marienlyst skole tilsier et behov for 100 parkeringsplasser. For å redusere bruk av personbil ble det kun planlagt 35 plasser, som tilsvarer en dekningsgrad på 35 prosent. Dette tiltaket har som konsekvens at reisevaner endres i forhold til referansebygget med en større andel kollektiv- og sykkelreiser. Tiltaket gir en reduksjon på utslipp fra transport på cirka 2,5 prosent.

Det er oppnådd en ytterligere reduksjon i klimagassutslipp fra prosjektert til i drift, fra 2 til 9,6 prosent. Reisemiddelfordeling for transport er basert på en reisevaneundersøkelse for Drammen. For arbeids- og skolereiser er det benyttet et vektet snitt. Skolen er sentralt plassert i Drammen, hvor elever kan gå og kjøre kollektivt. Den begrensede reduksjonen skyldes prosjektets sentrale lokalisering, og at referansebygget bruker de samme forutsetningene som prosjektert bygg. Forskjellen vil være vesentlig større ved sammenligning med et skoleprosjekt med en annen lokalisering i Drammen.

Energi

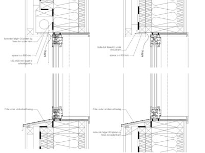
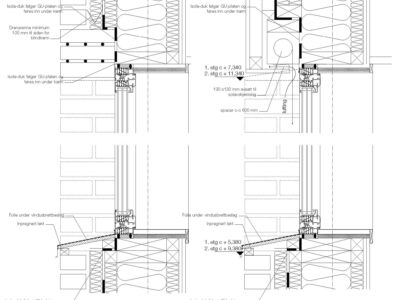
Det er gjennomført en rekke tiltak for at bygget skal klare seg med et lavt energibehov. Bygget tilfredsstiller krav til A-merke i energimerkeordningen og energibehovet er under halvparten av forskriftskravet TEK07, som var gjeldende minimumskrav da planleggingen av skolen startet. Byggets energiforsyning er både fra fjernvarmenett og kjøpt elektrisitet. Skolen er knyttet til nærvarmeanlegget på Strømsø. Anlegget gir mulighet for å veksle varme/kulde med omkringliggende bygninger. Ved å bruke en varmepumpe drar man nytte av solvarmetilskudd som akkumuleres fra kunstgressbanen. Skolen kan levere overskuddsvarme til Drammensbadet. I vinterhalvåret leveres fjernvarme fra Drammen Fjernvarme som i hovedsak er basert på fjordvarmepumpe og bioenergi. Oppvarmingsbehovet i bygget er lavt på grunn av god isolasjon, gode vinduer, minimering av kuldebroer og lav luftlekkasjefaktor. Bygget har et vannbårent varmesystem. Varmtvann dekkes 50 prosent av elektrisitet og 50 prosent av fjernvarme.

Kjølebehovet er redusert blant annet ved et lavt vindusareal og god utvendig solskjerming med automatiske persienner. Takvinduene har høyere solfaktor i glasset enn normalt. For å unngå overoppheting i bygget på de varmeste dagene benyttes branngassviften på taket til å trekke ut varm luft av bygget. Energibehov til drift av ventilasjonsanlegget er redusert gjennom behovsstyring og energieffektive vifter.

Etter tre års drift (2012) rapporterte Drammen kommune et energiforbruk som er mindre enn beregnet. Utslippet for bygget «i drift» er dermed redusert med 61,2 prosent i forhold til referansebygget. Den største reduksjonen finner vi i bruk av elektrisitet. Da denne energikilden også har den største utslippsfaktoren, 0,123 kg CO2-ekv/kWh for referansebygget og 0,123 for bygget "I drift" (ZEB-utslippsfaktor 2012), gir det et stort utslag i totalt CO2-utslipp.

Konstruksjoner og materialbruk

Klimagassutslipp fra materialbruk ble ikke vektlagt i prosjektet, noe som reflekteres i klimagassberegningen. Referansebygget er beregnet med konstruksjoner som oppfyller tiltaksmodellen i TEK ’07 og med en kledning i tegl.

Grunnet utformingen av beregningsverktøyet inneholder ikke referansebygget sammenlignbare fundamenter (løs leca, spunt og peler). Dersom disse postene trekkes ut av klimagassregnskapet er forskjellen mellom referansebygg og prosjektert bygg cirka 20 prosent. Det er spesielt oppbyggingen av yttervegger som bidrar til de høyere utslippene i prosjektert bygg (betongkonstruksjoner samt passivhusnivå).

Skolen var opprinnelig tenkt kledt med trefasader, men byggherren valgte en løsning av teglforblending i nederste deler og lettpuss i de utkragede delene i 3. etasje og deler av 2. etasje ut fra vedlikeholdshensyn. Konstruksjonen er utført i stål og betong med ståldragere, hulldekkelementer i betong og et lett-tak. Systemet er basert på en 7,2 x 7,2 m konstruktiv modul.

Nøkkeltall

AREALFORBRUK

6454 m² (oppvarmet BRA) fordelt på 510 elever, 95 årsverk. Ca 12 m²/elev
Areal BTA 6500 m2
Areal BRA 6454 m2
Oppvarmet areal BRA 6454 m2
Antall beboere/brukere 605
Glassandel 12,8 %
Kompakthetsfaktor 0,233 m3 volum/m2

KLIMAGASSREGNSKAP

  Referanse Prosjekt Ferdig I drift
Energi 16,5 9,7 9,7 6,4
Materialbruk 13 22,4 22,4 22,4
Transport 5,2 5,1 5,1 4,7

ENERGI

Netto energibehov: 70 kWh/m² år. Levert energi: 77 kWh/m² år. (Beregnet ihht. NS3031 og standard klima).

Energimerke: A
Netto energibehov: 70 kWh/m2/år (NS3031)
Beregnet levert energi: 77 kWh/m2/år (NS3031)
Energikilder: Nærvarmenett basert på varmepumpe fra gressbane. Drammen Fjernvarme får energi fra fjorden og biovarme som blir levert til nærvarmenettet. Elektrisitet.

ENERGIBUDSJETT

Romoppvarming: 17,6 kWh/m2/år
Ventilasjonsvarme: 1,2 kWh/m2/år
Varmtvann: 10,1 kWh/m2/år
Viftedrift: 12 kWh/m2/år
Pumpedrift: 0,8 kWh/m2/år
Belysning: 15,5 kWh/m2/år
Teknisk utstyr: 13,3 kWh/m2/år

BYGNINGSTEKNISK

U-verdi tak: 0,1 snittverdi
U-verdi gulv: 0,07 snittverdi
U-verdi yttervegg: 0,13 snittverdi
U-verdi vindu/dører: 0,8 snittverdi
Spesifikk vifteeffekt: 1,5 kW/(m3/s)
Årsvirkningsgrad varmegjenvinner: 86 %

KOSTNADER OG STØTTE

223 MNOK Merkostnader til passivhustiltak utgjør ca 5%. Prosjektstøtte Enova: 4,8 MNOK.

Kvadratmeterpris: 34500 kr/m2
Merkostnader energi: 1549 kr/m2
Prosjektstøtte Enova: 4800000 kr

Prosjektopplysninger

PROSJEKTDETALJER

Adresse: Schwartz gate 12, Drammen
Kommune: Drammen
Prosjektperiode: 2008 - 2010
Status: Ferdigstilt (2010)
Prosjekttype: Nybygg
Funksjon/bygningstype: Undervisning
Miljøstandard: Passivhusstandard (NS3700/3701)
Forbildeprogram: FutureBuilt
Konkurranseform: Begrenset plan-og designkonkurranse

PROSJEKTTEAM

Byggherre: Drammen Eiendom KF
Arkitekt: div.A arkitekter
Landskapsarkitekt: Bjørbekk & Lindheim AS
Prosjektledelse (PL): Drammen Eiendom KF
Miljørådgiver: Rambøll AS
Rådgivere: Rambøll AS, Bright VVS, Bright elektro, Skansen Consult AS
Hovedentreprenør: OBAS

Kart